
Der Standort des Bauvorhabens liegt im südwestlichen Teil von Dresden im Stadtteil Gorbitz. Auf dem Areal eines ehemaligenLebensmittelmarktes plante und realisierte IPROconsult für den Bauträger Devello einen 6-geschos-sigen Neubau mit Tiefgarage.
Der markante Neubau bildet den Auf-takt der Höhenpromenade in Dresden-Gorbitz, einer städtebaulich bedeut-samen, präsenten Stelle. Höhen-technisch orientiert sich das Gebäude an der Umgebung.
Um zum Amalie-Dietrich-Platz den Baukörper als klare Kante zu formu-lieren, wird im Attikabereich der obere Baukörper geschlossen. Dadurch ent-steht ein „Grünes Fenster“ zum Platz“, welches durch eine vertikale Begrü-nung eine besonderes, attraktives und polyvalentes Gestaltungs-Element am Platz schafft. Der Platz wird damit besser gefasst.
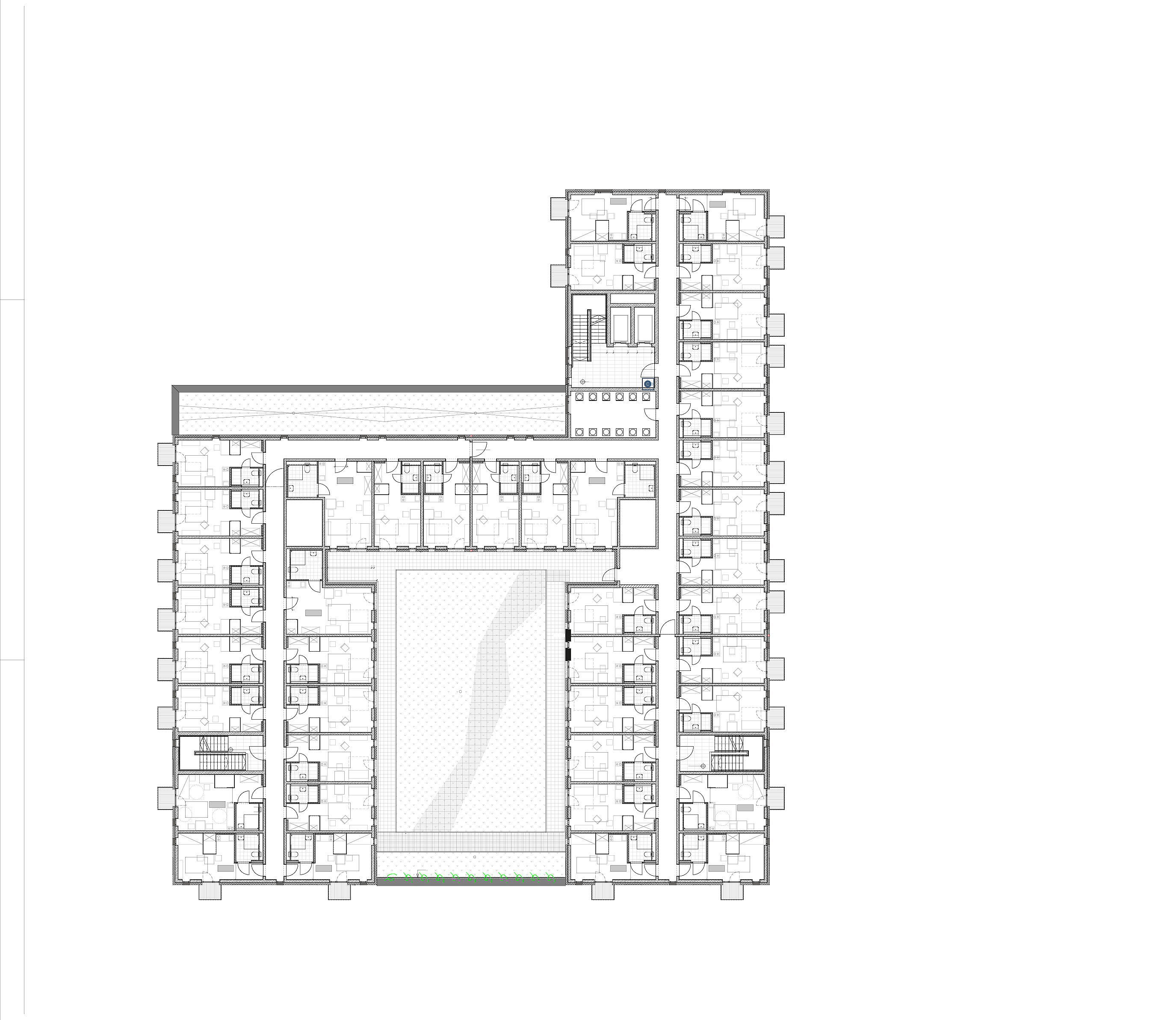
Die Wohngeschosse schließen sich ab dem 2. Obergeschoß ringförmig um einen begrünten Innenhof. Die Belichtung wird reguliert durch grüne Verschattung im Sommer und Öffnung im Winter.
Das „Grüne Fenster“ ist im Sinne des aktuell wichtigen Themas der „resil-ienten Stadt“ und Stadtklima ein geeignetes Element um das Mikro-klima am Platz als auch im Gebäude ökologisch positiv zu beeinflussen durch Schatten, Verdunstungskühle, etc. Es ist damit ein performatives, modernes Stadtelement und der Neubau:
„DAS GRÜNE TOR GORBITZ“.
Das Erdgeschoß wird durch Einzel-handel genutzt, das 1. Obergeshoß beherbert ein Fitnesscenter kombi-niert mit Appartments. Die Oberge-schosse zwei bis fünf beherbergen Appartements.

Devello Capital AG
Architektur
Energieberatung
BrandschutzkonzeptLP 1 - 5
LP 1 - 5
Ferdinand Eichler
Markus Stevens
Ahmad Tahlawi
Energieberatung
Susanne Weidelt
Grit Wichtrey
Brandschutzkonzept
Gunter Groth
10.2019 - 2022
Fertigstellung
07.2023
18,17 Mio. EUR


