
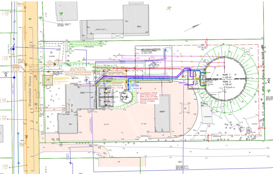
In der Stadt Werneuchen wurde ein Reinwasserbehälter (laut Projektvor-gabe des Bauherrn Reinwasserkam-mern (RWK) tituliert) inklusive Druck-erhöhungsstation (DEST) (Reinwas-serpumpstation = RWPSt) errichtet. Die RWK sind auf dem Gelände des Wasserwerkes (WW) Werneuchen verortet. Die vorhandenen RWK sind in das Gebäude des vorhandenen WW integriert.
Das Erfordernis des Neubaus ergibt sich aus dem Alter und dem Zustand der vorhandenen RWK, dem damit einhergehenden Sanierungsbedarf sowie der Erhöhung des Bedarfs an Trinkwasser, der Notwendigkeit der Abdeckung von Bedarfsspitzen und ist damit letztendlich für die Auf-rechterhaltung und die Stabilisierung der Trinkwasserversorgung unab-dingbar, Engpässe in der Wasser-versorgung sollen beseitigt werden. Für die zu planenden RWK lag bereits eine ausführungs-/ ausschreibungs-reife Unterlage eines einschlägigen Herstellers solcher Anlagen als Kunststoffbehälter vor.
Begründet mit genehmigungsrelevan-ten Auflagen bzw. dem abgelehnten Bauantrag wurde aufgabenseitig durch die SWW vorgegeben und
dann auch vertraglich vereinbart, dass durch IPROconsult im Rahmen einer Grundlagenermittlung/ Vorpla-nung (einphasig: GE/VP) eine weitere Variante als Alternativvariante, ein Kostenvergleich (Baukosten) sowie die Untersuchung der Plausibilität der vorliegenden Variante der Speicher-ung mit dem Kunststoffbehälter be-arbeitet wird. Bei der Variantendis-kussion war auch die Wahl eines geeigneten Standortes auf dem vorhandenen Grundstück der SWW zu berücksichtigen.
Im Ergebnis der Aufstellung der Planungsgrundlagen und der Ermitt-lung der Ausgangswerte stellte sich heraus, dass das dem Kunststoffbe-hälter zu Grunde gelegte Speicher-volumen nicht dem Erfordernis der Trinkwasserbereitstellung genügt.
Auch der geplante Standort musste begründet mit der Brunnenschutz-zone geändert werden. In Änderung der Aufgabenstellung waren darauf-hin im Rahmen der Vorplanung verschiedene Varianten bezüglich der funktionellen Lösung und der äußeren Ausführung, auch unter Berücksich-tigung von perspektivischen Erwei-terungen zu untersuchen.

Stadt Werneuchen, Eigenbetrieb Wasserversorgung & Abwasser-behandlung vertreten durch Stadtwerke Werneuchen
Tragwerksplanung LP 1 - 9
Ingenieurbauwerke LP 1 - 9
Freianlagen LP 1 - 9
Technische Ausrüstung/ Technologie LP 1 - 9
Örtliche Bauüberwachung
3D-Modell für Präsentations-zwecke
Britta Löschigk
Tragwerksplanung
Antje Dietrich
Elke Plischke
Imad al Diban
Hubert Westphal
Ingenieurbauwerke, Freianlagen
Antje Dietrich
Elke Plischke
Örtliche Bauüberwachung
Peter Metzger
GE/VP 01.2019 - 04.2019
Vorstellung beim Hauptausschuss der Stadt Werneuchen 08.2019
EP/GP VV 06.2020 - 05.2021
MdV 11.2021
Fertigstellung
10.2023
2,18 Mio. EUR davon
- 1,85 Mio. EUR Los 1 Bau inkl. FA
- 0,33 Mio. EUR Los 2 Ausrüstung




