
Die Berliner Wasserbetriebe haben sich vor dem Hintergrund der Novel-lierung der Klärschlammverordnung für den Neubau einer Klärschlamm-verwertungsanlage (KVA) am Stand-ort Klärwerk Waßmannsdorf entschie-den.
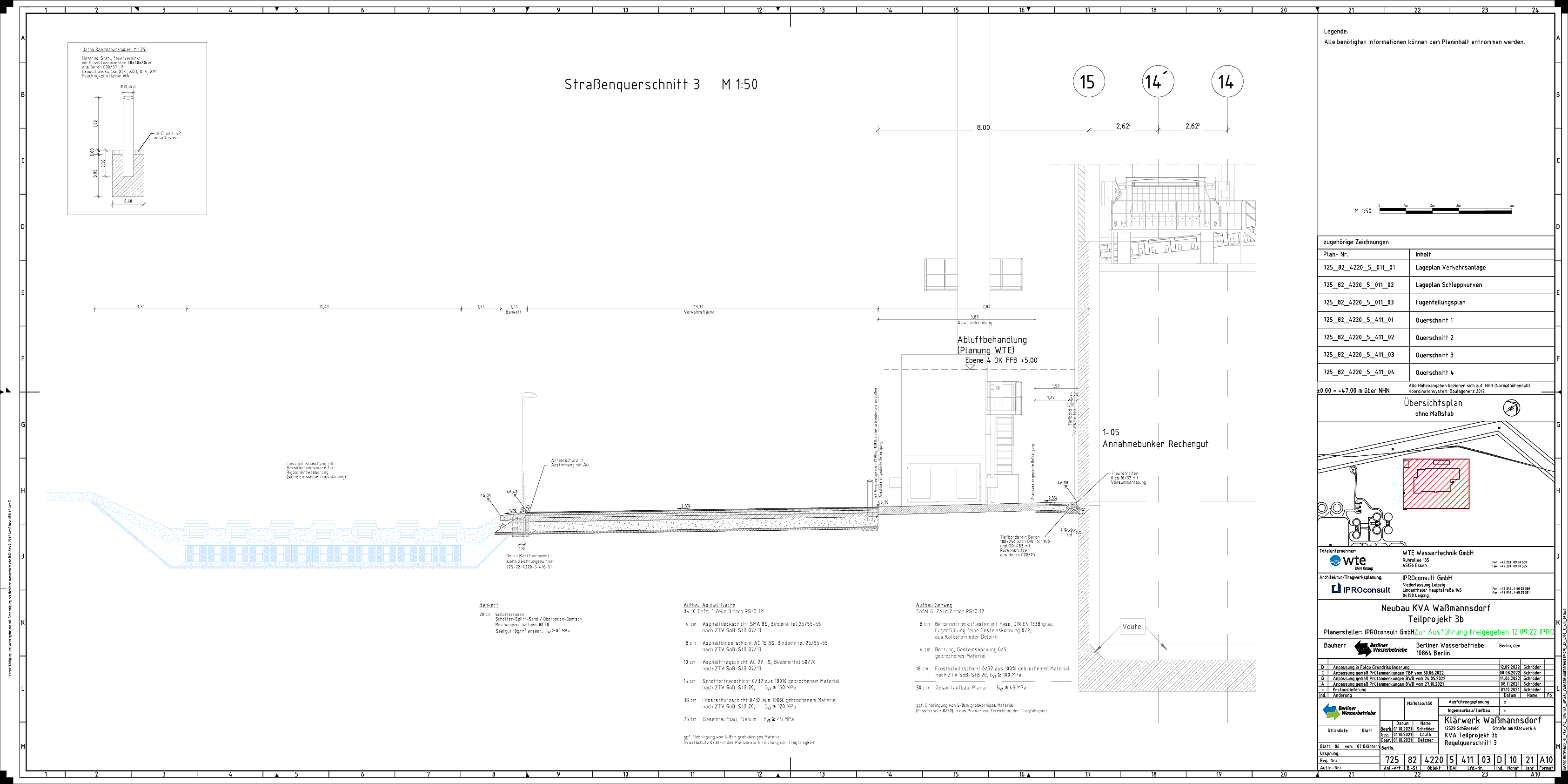
Neben den zentralen verfahrenstech-nischen Komponenten erfordern Er-richtung und Betrieb der KVA auch Verkehrsanlagen und die medientech-nische Erschließung in den Außenan-lagen. Die geplante Verkehrsanlage umschließt den Neubau der KVA ring-förmig. Die Hauptverkehrsführung verläuft im Abstand von 8,0 m zum Gebäude auf einer Gesamtbreite von 6,0 m. In Teilbereichen ist die Fahr-bahn weiter aufzuweiten um die Rück-wärtsfahrt der Sattelzüge in die Hallen gewährleisten zu können. Neben der Fahrbahn aus Asphalt und den An-lieferzonen aus Beton, zählen Geh-wegbereiche, Parkstände und Radab-stellmöglichkeiten zu den Verkehrsan-lagen. Die Verkehrsflächen entwäs-sern über das Bankett in Versicker-ungsmulden.
Zur Niederschlagswasserbewirtschaf-tung gehören zudem Kanäle zur Sammlung des auf den Dachflächen anfallendes Wassers und Rigolen zur vollständigen örtlichen Versickerung. Zur sicheren Dimensionierung der Versickerungsanlagen trotz der an-spruchsvollen Baugrundsituation am Standort erfolgte ein Nachweis mittels hydrologischer Langzeitkontinuums-simulation.
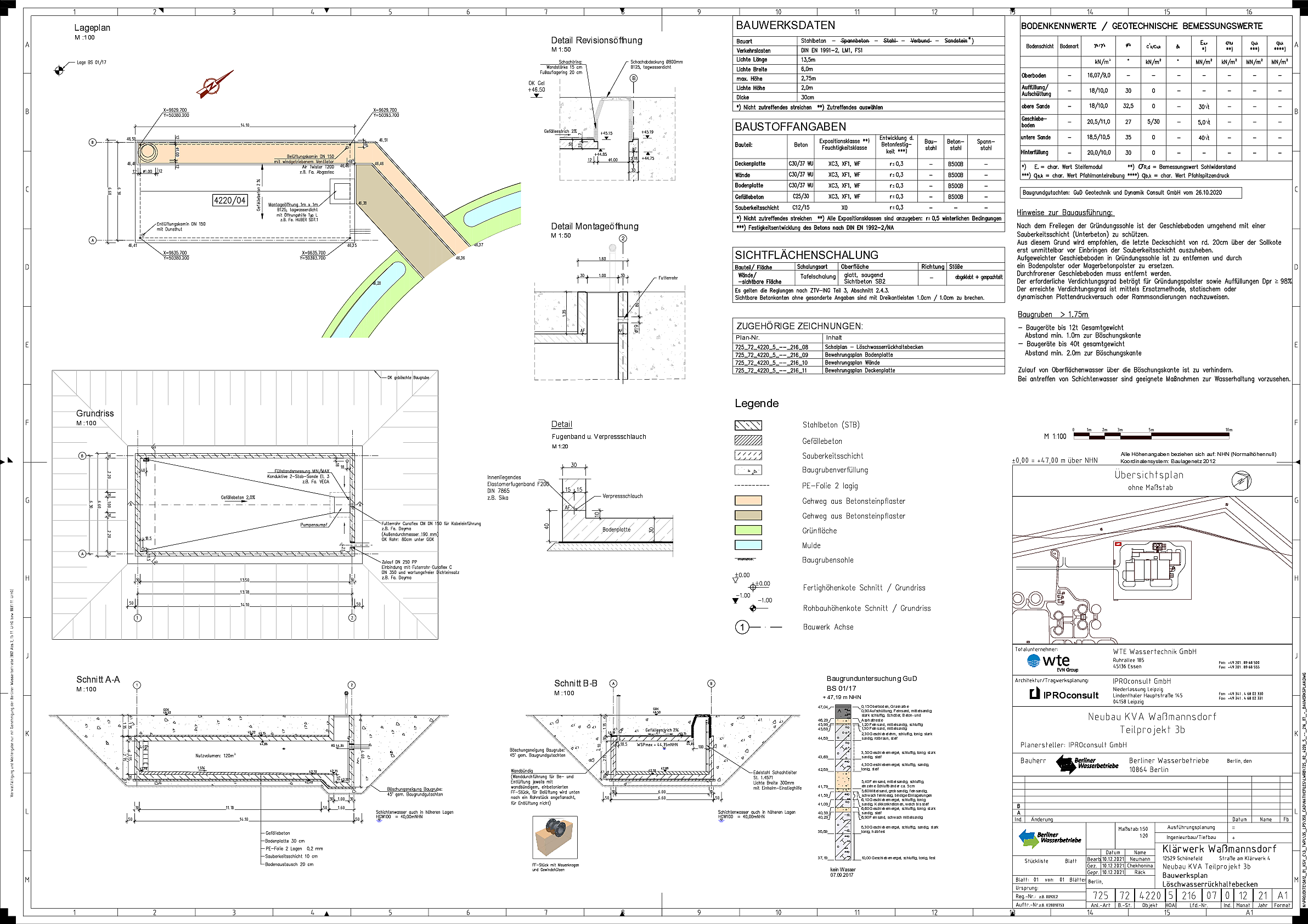
Bei der Schmutzwasserableitung aus dem Gebäude war zusätzlich zur Pla-nung der Kanäle mit Anbindung an das vorhandene Werksnetz, zu be-rücksichtigen, dass im Brandfall mit wassergefährdenden Stoffen verun-reinigtes Löschabwasser anfallen kann. Um eine Beeinträchtigung von Wasser und Boden auszuschließen, wurden in der Außenanlage daher ein automatisierter Schieberschacht und ein unterirdisches Speicherbecken geplant.
Die Bereitstellung von Betriebs- und Löschwasser erfolgt über eine Ring-leitung.

WTE Wassertechnik GmbH
Berliner Wasserbetriebe
Verkehrsanlagen
IngenieurbauwerkeLP 2 - 9
LP 2 - 9
Henning Stratmann
René Schröder
Antje Detzner
Tobias Hoff
Gerhard Nickerl
Jana Neumann
(Planung Baugrube)
08.2020 - 12.2021
KG 500 3,4 Mio. EUR



