
Mit der Novellierung des Personen-beförderungsgesetzes (PBefG) ist das Thema Barrierefreiheit im öffentlichen Personennahverkehr verstärkt in den Fokus der Öffentlichkeit und Politik gerückt.
Die entsprechenden gesetzlichen Vor-gaben werden in den Nahverkehrs-plänen der Kommunen festgehalten und setzen die Rahmenbedingungen für die Gestaltung des ÖPNV. Gemäß der aktuellen Fassung des Nahver-kehrsplans der Stadt Koblenz ist der barrierefreie Neu-/Aus-/Umbau der Haltestellen und die Herstellung weit-gehender Barrierefreiheit bis etwa 2030 abzuschließen.
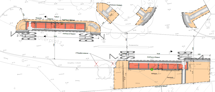
Um dieses Ziel zu erreichen, werden nun in der Stadt Koblenz zahlreiche Haltestellen und Querungen barriere-frei umgebaut. Die Zuständigkeit für den barrierefreien Umbau liegt dabei bei den Verkehrsbetrieben Koblenz (Koveb).
Aufgrund der umfangreichen Anzahl von 100 Haltestellen wurden diese in vier Pakete aufgeteilt und werden zu unterschiedlichen Zeitpunkten ge-plant und umgebaut. In den Jahren 2022-2024 soll der barrierefreie Aus-bau der Haltestellen planerisch und baulich umgesetzt werden.
Vollständig barrierefreie Haltestellen erfüllen folgende Vorgaben:
- Mindesthöhe Bordstein 18cm
- Durchgangsbreite mindestens 1,20m bis 1,50m
- Neigung höchstens 6%
- taktile Elemente auf dem Boden
- visuelle Kontraste auf dem Boden (helle und dunkle Pflasterung)
- Sitzmöglichkeit
- Gute Lesbarkeit von Fahrgastinformationen
- sofern DFI-Anzeiger vorhanden: TTS-Taster auf Rollstuhlfahrerhöhe mit Lautsprecher-Ansage; Lesbarkeit der angezeigten Texte bis zu 25m Entfernung

Koblenzer Verkehrsbetriebe GmbH
Verkehrsanlagen LP 1 - 8
Joachim Haab
Gentjana Rexhaj
Andrej Trippel
Viktoria Walter
Bauüberwachung
Ramazan-Emre Günesdogdu
Bilal Turgut
11.2022 - 12.2025
abhängig von der Genehmigung der Fördermittel
ca. 5 Mio. EUR





