

Stadt Guben
Ingenieurbauwerke LP 2 - 8
Örtliche Bauüberwachung
Jan Pfefferkorn
Kostenplanung/Ausschreibung
Stephan Mickan
Christian Mai
08.2023 - 08.2024
Fertigstellung
03.2025
KG 200-600 ca. 185.000 EUR
Die Stadt Guben plante die Qualifi-zierung der Medieninfrastruktur im Gewerbegebiet Deulowitz auf Grund von konkreten Ansiedlungsvorhaben. Dazu sollte in der Klaus-Herrmann-Straße ein Mittelspannungskabel aus-gewechselt werden. Der Netzbetrei-ber Energieversorgung Guben GmbH wurde bei der Planung und Ausführ-ung der Leistungen mit einbezogen. Die hier beschriebenen Leistungen beinhalten den Tiefbauteil. Die elek-trotechnische Ausrüstung ist nicht Bestandteil der Planung.
Arbeitsgrundlage für die Tiefbaupla-nung war eine Grobtrassenplanung mit Angaben zu Anbindepunkten und Trassenbelegung.
Unter Einholung und Beachtung des
umfangreichen innerstädtischen Me-dienbestandes wurde die Trassen-führung kollisionsfrei in ausführungs-reife geplant und mit allen Versor-gungsträgern sowie den zuständigen Ämtern und Behörden abgestimmt.
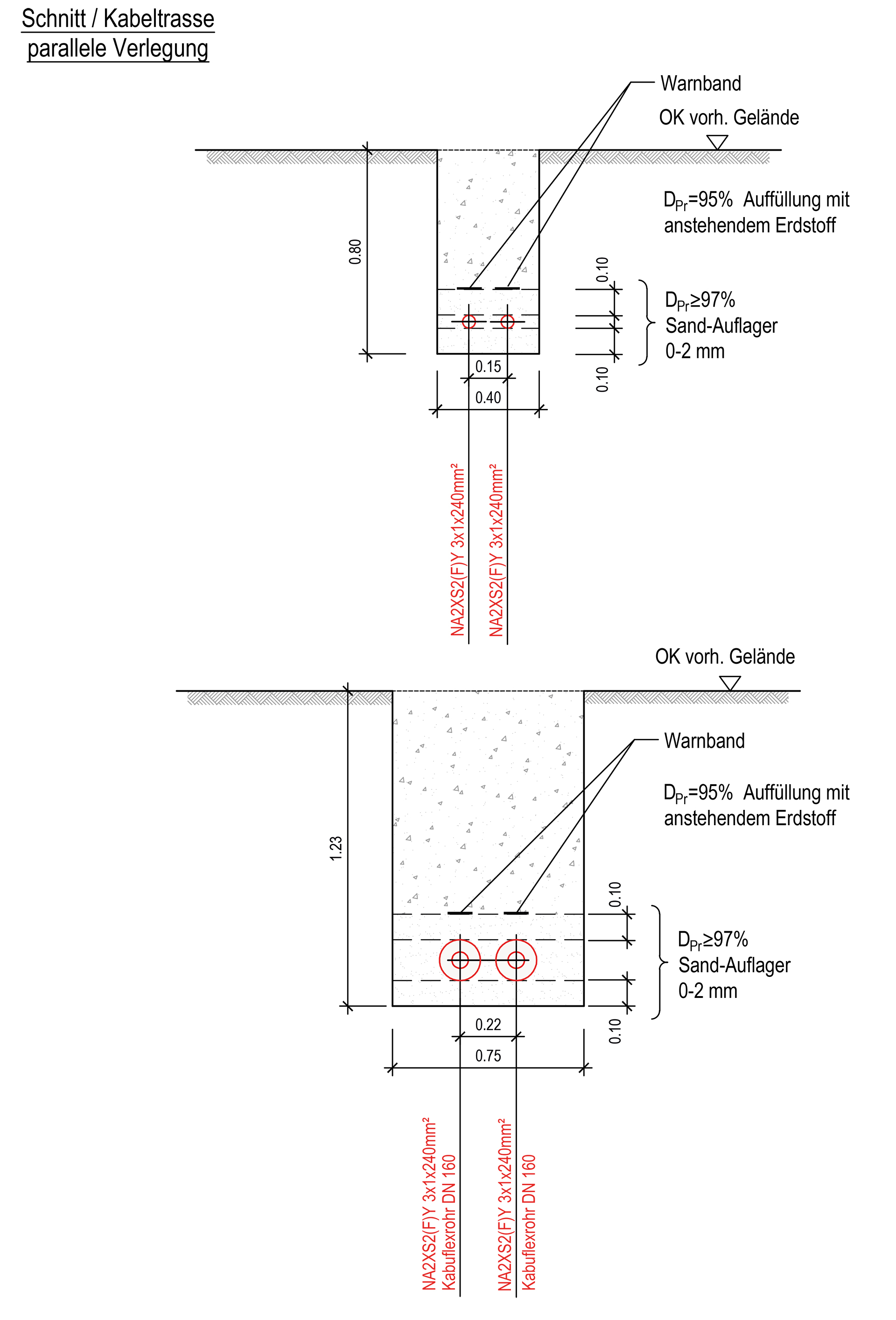
Der Kabelgraben hat in der Regel eine Tiefe von 0,80 m und eine Breite von 0,40 m. An Kreuzungen von Straßen werden die Kabel in Schutzrohren Kabuflex DN 160 verlegt. Hier ist der Kabelgraben 1,20 m tief und 0,60 m breit. Bei Straßenquerungen in ge-schlossener Bauweise sind Schutz-rohre PEHD d180x16,4 einzubauen.
Die Baumaßnahme erstreckte sich über eine Länge von ca. 820 m.
