
Im Rahmen der durch den Staatsbe-trieb Sächsisches Immobilien- und Baumanagement, NL Bautzen beauf-tragten Planung für das Leistungsbild Ingenieurbauwerke für den Neubau der Landesuntersuchungsanstalt wur-den durch IPROconsult folgende Teil-objekte betrachtet:
- Anlagen der Schmutz- und Regen-wasserentsorgung
- Tiefbauarbeiten für die Wasser-, Gas- und Wärmeversorgungs-anlagen
- Tiefbauarbeiten für die elektrischen Anlagen sowie die Kommunika-tions-, Sicherheits- und informa-tionstechnische Anlagen
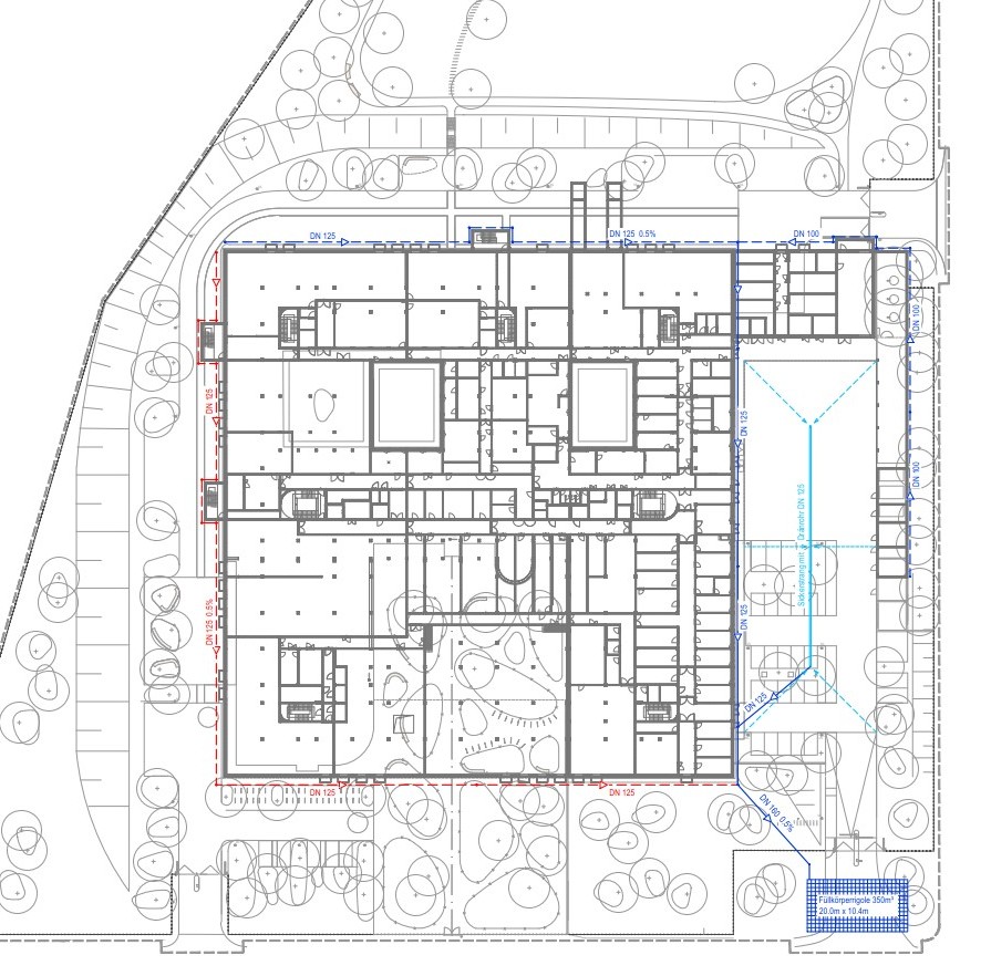
- Dränage einschließlich Versic-kerungsanlage für das Gebäude und den Wirtschaftshof
- alle Stützbauwerke, für die eine Tragwerksplanung erforderlich ist
- Erstellung eines koordinierten Leitungsplanes
Die Leistungsgrenzen für die Planung der Ingenieurbauwerke sind hierfür ab 1 m vor Gebäudeaußenkante bis Grundstücksgrenze bzw. bis zu den Anbindepunkten der Medien in den öffentlichen Straßen.
Die Planung der äußeren Erschließung für die Verkehrsanlagen, die Ver- und Entsorgung sowie die Freianlagen für das ganze Gewerbegebiet Bischofs-werda Nord wurde ebenfalls durch IPROconsult über alle Leistungs-phasen im Auftrag der Stadt Bischofs-werda geplant.
Als Vorflut für das anfallende Regen-wasser wurde das vorhandene Regen-wasserrückhaltebecken des Gewer-begebietes Bischofswerda Nord er-weitert, so dass das gesamte anfal-lende Regenwasser der Baumaß-nahme LUA ungedrosselt eingeleitet werden kann. Eine Ausnahme bildet hierbei der Wirtschaftshof. Dieser liegt unterhalb der Rückstauebene der vorhandenen Regenwasserkanalisa-tion in der südlichen Erschließungs-straße. Das dort anfallende Regen-wasser wir durch ein Regenwasser-pumpwerk mit einer Förderleistung von 60 l/s über die Rückstauebene gehoben. Um das Pumpwerk wirt-schaftlich auszulegen, wurde ein Stauraumkanal DN 2000 vorgeschal-tet.

Freistaat Sachsen, Staatsbetrieb Sächsisches Immobilien- und Baumanagement, NL Bautzen
Tragwerksplanung LP 1 - 2
Technische Ausrüstung LP 1 - 2
Ingenieurbauwerke LP 1 - 2
Matthias Räck
Judith Zavesky
Technische Ausrüstung
Stefanie Otto
Jan Pfefferkorn
Ingenieurbauwerke
Stefanie Otto
Jan Pfefferkorn
Sonstige Leistung
Kostenplanung/Ausschreibung
Stephan Mickan
Dörte Putzky
12.2024 - 08.2025
KG 500 4,68 Mio. EUR

