
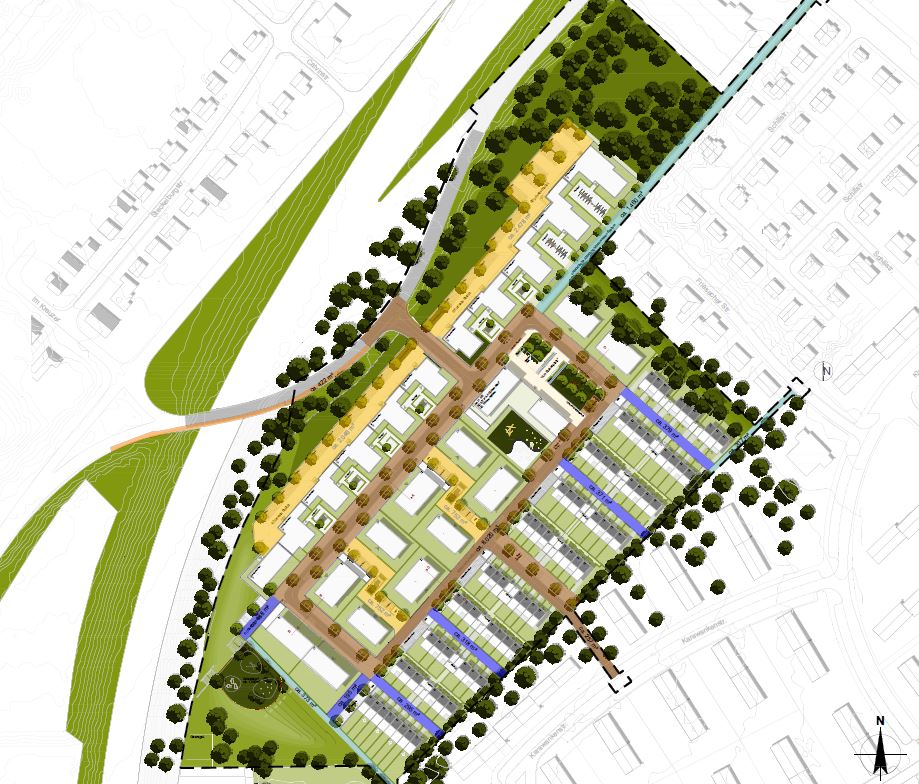
Die Stadt Wiesbaden beabsichtigt die Entwicklung des Neubaugebiets „Gräselberg – Auf den Eichen“ in Wiesbaden-Biebrich. Das Plangebiet ist etwa 7,5 ha groß und schließt unmittelbar nordwestlich an die be-stehende Siedlung „Gräselberg“ an, die zwischen den 1920er und 1970er Jahren überwiegend in aufgelocker-ter Zeilenbauweise entstanden ist.
Im Nordwesten wird das Plangebiet durch die Saarstraße und die BAB A643 begrenzt. Die geplante Wohn-bebauung wird durch vorgelagerte Grünflächen von diesen Straßen ge-trennt. Nach Nordosten schließt sich Einzelhausbebauung entlang der Friesacher Straße an.
Im Süden und Südosten grenzen wiederum die BAB A643 bzw. Sport-
und Stellplatzanlagen an die Plange-bietsgrenze. Auf den hier eingeplan-ten Grünflächen wird auch eine vor-aussichtlich 6m hohe Schallschutz-einrichtung entstehen.
Das Gelände fällt nach Nordosten in Richtung zur Erich-Ollenhauer-Straße um ca. 7 bis 8 m ab und hat im süd-lichen Bereich auch ein leichtes Gefälle zur Siedlung Gräselberg hin.
Im Rahmen des Bebauungsplanver-fahrens ist die Errichtung eines Wohngebietes mit circa 400 Wohn-ungen (Mehrfamilien- und Reihen-häuser) geplant, das Baugebiet wurde in zehn Baufelder unterteilt.
Im Zuge der neuen Bebauung ist die Erschließung des Areals neu zu planen.

GWW Wiesbadener Wohnbaugesellschaft mbH
Verkehrsanlagen LP 1 – 9 Ingenieurbauwerke LP 1 – 9 Örtliche Bauüberwachung
Trassenkoordination
Bestandspläne
Mitwirkung Aufstellung B-Plan
Joachim Haab
Gentjana Rexhaj
Jonas Ewald
Örtliche Bauüberwachung
Ramazan-Emre Günesdogdu
Bilal Turgut
09.2018 - 12.2020
Fertigstellung
08.2023
5 Mio. EUR


