


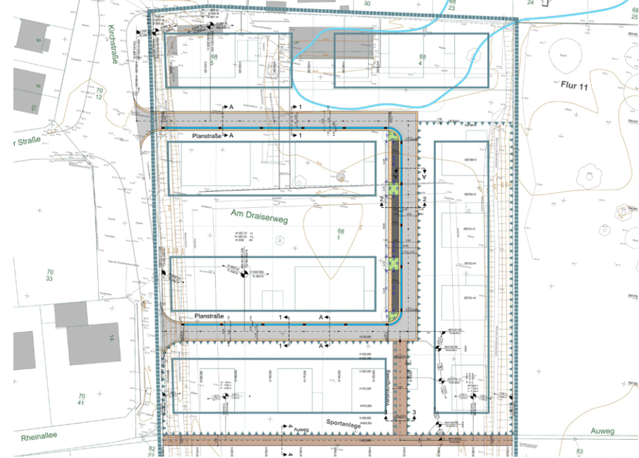
Zur Gegenfinanzierung für neue Sportplatzanlagen plante die Stadt Eltville auf dem Gelände des „Alten Sportplatzes“ die Infrastruktur für ein Wohngebiet mit ca. 29 Wohneinhei-ten zu errichten. Die Erschließung erfolgte dabei U-förmig, mit der Öff-nung nach Westen.
Die Erschließungsstraße beginnt in Höhe der Einmündung der Berliner Straße in die Kirchstraße und mündet ca. 60 m südlich wieder in die Kirch-straße ein. Ausgehend vom südlichen Schenkel verbindet ein 4,50 m breiter Weg die Erschließungsstraße mit dem Auweg. Das Gebiet befindet sich für den Fall des 100-jährigen Hochwas-serereignisses im Überschwem-mungsbereich des Rheins. Das hat zur Folge, dass der vorhandene Re-tentionsraum durch den Neubau des Gebietes nicht verringert werden darf. Eine Hochwassersimulation er-gab die dazu notwendigen Gelände-höhen.
Für das Neubaugebiet „Alter Sport-platz“ ist bezüglich der Entwässerung ein Trennsystem mit GFK-Kombina-tionsschächten vorgesehen. Ebenso wurde die Trinkwasserversorgung für den Betreiber Rheingauwasser ge-
plant. Zu den Planungsaufgaben ge-hörte auch die Trassenkoordinierung von Gas, Trinkwasser, Strom, Tele-kom, Regenwasser und Schmutzwas-ser.
Geplant wurden:
- Straßenfläche:
885 m² Asphalt, 306 m² Pflaster, 58 m² wassergebundene Decke - Gehweg:
45 m² Gehweg + 85 m² Parken - Gesamtfläche:
2,05 ha inkl. Geländemodellierung - Entwässerung:
Trennsystem
Schmutzwasser DA 280 PE 225 m
Regenwasser DA 355 PE 226 m - Trinkwasserleitung
DN 125 PE-HD 212
Die Ausführung erfolgte in drei Bauabschnitten:
- 1. BA: Bodenmodellierung auf einheitliches Niveau
- 2.BA: Erschließung mit Medien, Kanal, Baustraße
- 3. BA: Endausbau

Stadt Eltville / Rheingauwasser (TW)
Verkehrsanlagen LP 1 – 9
Ingenieurbauwerke LP 1 – 9 Örtliche Bauüberwachung
Jochim Haab
Alexander Bähr
Gentjana Rexhaj
Bauüberwachung
Ramazan-Emre Günesdogdu
10.2014 – 07.2015
Ausführungszeitraum
2017 – 2019
Endausbau
2024
1,6 Mio. EUR