
Bad Camberg und seine Stadtteile haben sich aufgrund der sehr guten Verkehrsanbindung an das Rhein-Main-Gebiet sowie durch eine ansprechende Infrastruktur zu einem attraktiven Wohnstandort entwickelt. Die Nähe zu Frankfurt und Wiesbaden, aber auch zum Flughafen Frankfurt und zum ICE-Bahnhof in Limburg sind Faktoren, die Bad Camberg zu einem attraktiven Wohnort machen. Darüber hinaus bietet Bad Camberg insbesondere Familien mit Kindern eine Vielzahl von Möglichkeiten, um Kinderbetreuung und Beruf vereinen zu können.
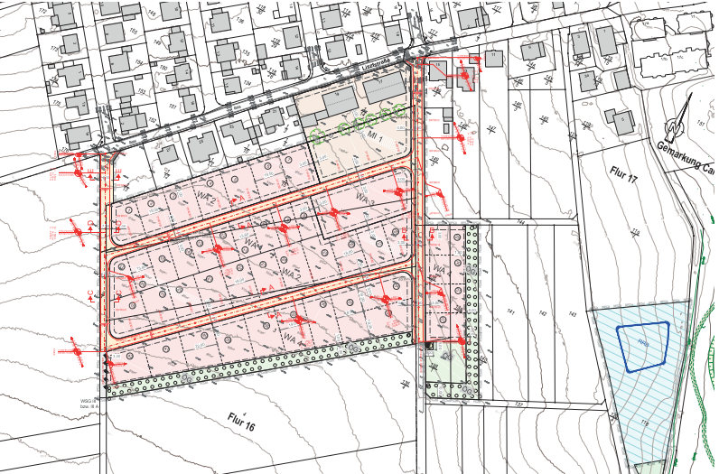
Die Stadt Bad Camberg entwickelt das Neubaugebiet „Am Sträßchen“. Das Plangebiet ist etwa 4 ha groß.
Auf dieser ehemaligen Acker-fläche sollen im Wesentlichen Einfamilienwohnhäuser entstehen, daneben wird es ein kleineres Areal
für gemischte Bebauung mit der Zulässigkeit von Mehrfamilienhäusern geben. Die Summe der Baugrund-stücke beläuft sich auf 42 Stück. Im Zuge der neuen Bebauung ist die Erschließung des Areals neu zu planen.
Im Norden grenzt das Baugebiet an die Lisztstraße. Die Anbindung an das Baugebiet soll über Beethovenstraße bzw. Lisztstraße/ Mühlweg erfolgen.
Die neu zu schaffende Baufläche schließt sich in südlicher Richtung westlich der Bundesstraße B8 und des Gewässerverlaufs des Emsbach in Richtung Würges unmittelbar an die bestehende Bebauung der Ortslage Bad Camberg an.
Das natürliche Geländegefälle fällt von Süd/Westen in Richtung Nord/Osten ab. Dadurch blickt man auf die Nachbarstadtteile und eine Feld-landschaft.

Hessische Landgesellschaft mbH Kassel
Verkehrsanlagen
IngenieurbauwerkeLP 1 - 6
LP 1 - 6
Joachim Haab
Jonas Ewald
12.2020 - 08.2023
ca. 2,05 Mio. EUR
