
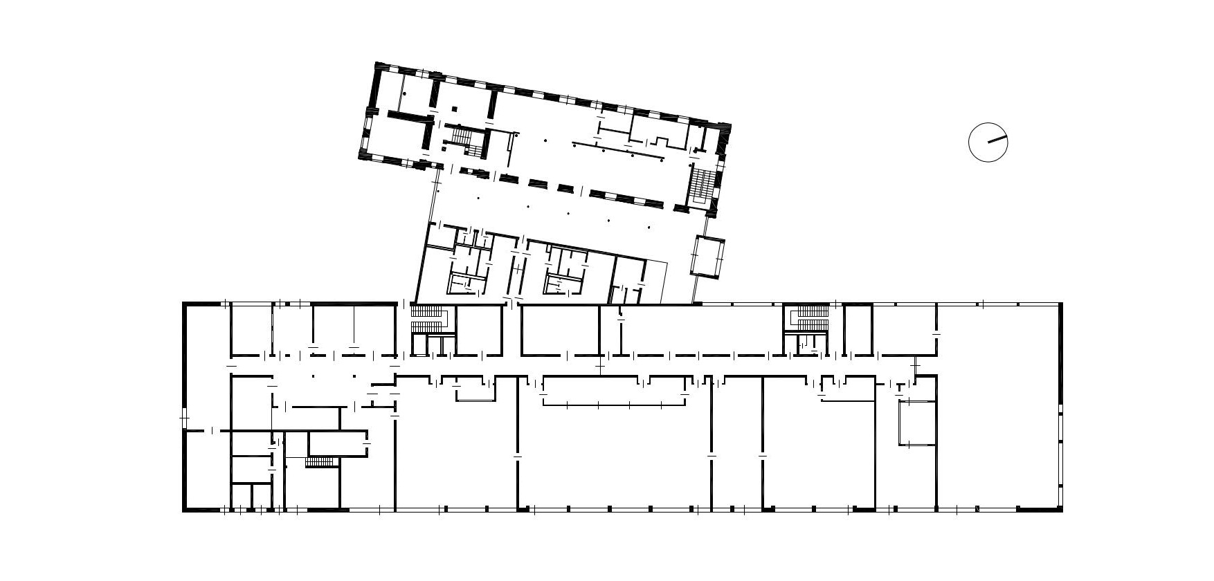
Die denkmalgeschützte königliche Garnisionsmühle im Dresdner Norden wurde zu einem Büro- und For-schungscampus für die Samsung-To-chter Novaled umgebaut. Neben der Sanierung und dem Umbau des histo-rischen Gebäudes wurde angrenzend ein Neubau konzipiert.
Im Erdgeschoss des Altbaus befinden sich eine Cafeteria mit Aufwärmküche sowie WC-Anlagen, Hausanschluss-
raum und Nebenräume. Zu dem be-stehenden Treppenhaus erhielt der Altbau ein zweites Treppenhaus sowie einen Aufzug. Im ersten bis dritten Obergeschoss befinden sich vorwie-gend Büroräume, ergänzt durch Be-sprechungs- und Nebenräume wie WC-Anlagen, Teeküchen, Serverraum. Ein eingeschossiger gläserner Ge-bäudeteil verbindet das Technikum und den Altbau. Dieser dient als
Hauptzugang und beinhaltet die Funk-tionen: Empfang, Rezeption, Um-kleideräume mit entsprechenden WCs und Nassräumen sowie den sich aus dem Altbau erstreckenden Cafeteria-bereich. Über den Umkleidebereich gelangt man in das Technikum. Dieser zweigeschossige Baukörper erstreckt sich über eine Länge von knapp 118 m bei einer Breite von 25,25 m.




