
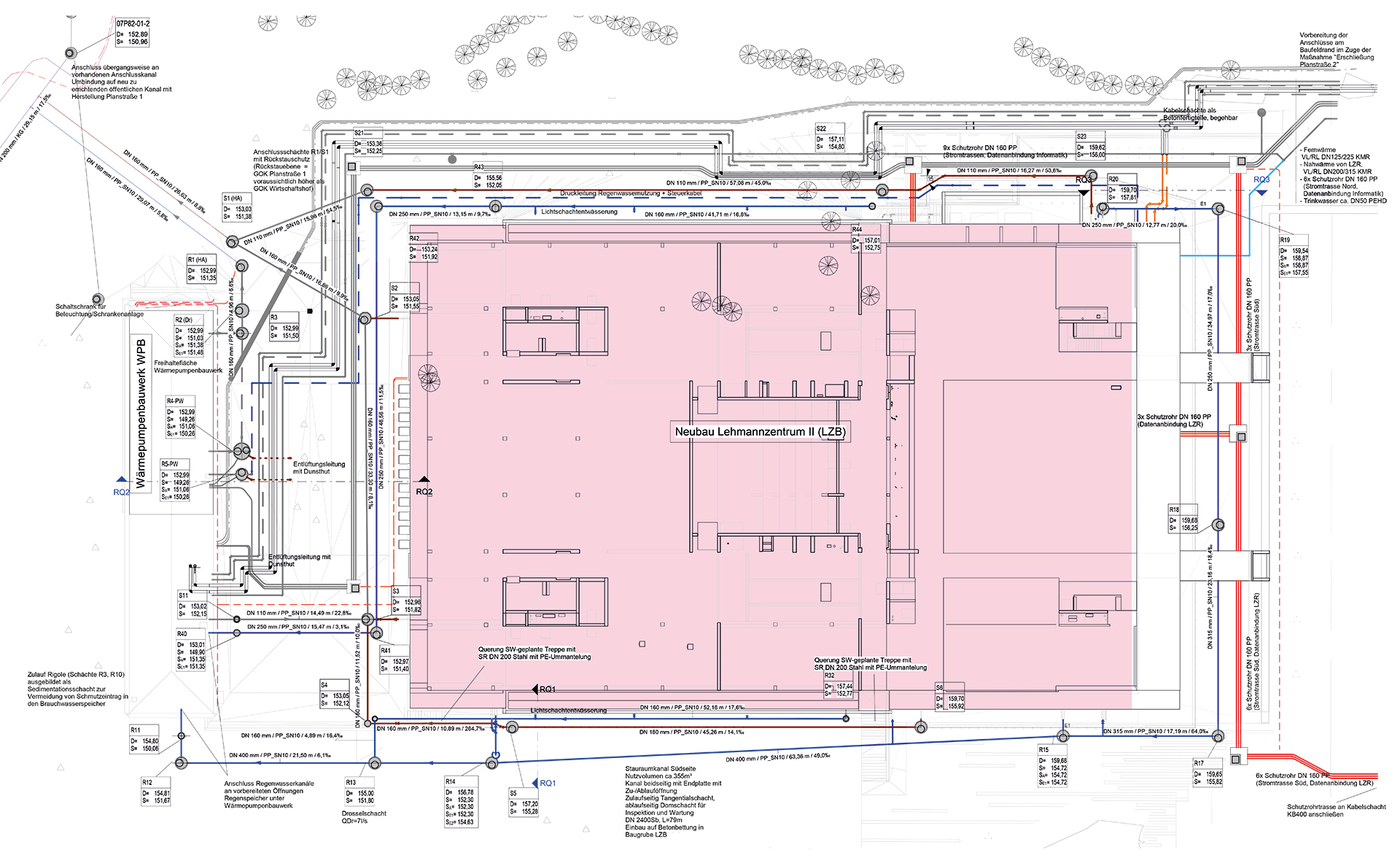
Gegenstand ist die medientechnische Erschließung des Neubaus eines Bürogebäudes an der Technischen Universität Dresden zur Unterbring-ung des Lehmann-Zentrums II (LZB).
Der geplante Standort befindet sich in zweiter Reihe an der Nöthnitzer Stra-ße, unmittelbar westlich des Rechen-zentrums. Mit dem Neubau sollen die fachlichen Schnittpunkte zwischen den ansässigen Instituten der Infor-matik und dem Hochleistungsrechner optimal genutzt werden.
In unmittelbarer Nähe zum Lehmann-zentrum II entsteht ein Wärmepum-penbauwerk zur Abgabe von über-schüssiger Wärme an das Fern-wärmenetz der Sachsenenergie, mit den zugehörigen Nah- und Fern-wärmeleitungen.
Der Inhalt der Planung und Bauüber-wachung umfasst folgende Teilbe-reiche:
- Schmutzwasserentsorgung mit Anschluss an die öffentliche Kana-lisation
- Regenwasserbewirtschaftung mit Rückhaltung und Anschluss an die öffentliche Kanalisation
- Die Rückhaltung erfolgt im Unterge-schoss des Wärmepumpenbau-werkes
- Tiefbau Trinkwasserversorgung einschl. Koordinierung
- Tiefbau Starkstromversorgung aus dem Netz der TU Dresden einschl. Koordinierung
- Tiefbau Datenanschluss an das Netz der TU Dresden einschl. Koor-dinierung
- Tiefbau Wärmeversorgung einschl. Koordinierung
Die Wärmeversorgung erfolgt über ein Nahwärmenetz aus dem Wärmeüberschuss des Lehmann-zentrums I (LZR, Hochleistungs-rechner der TU Dresden)

Staatsbetrieb Sächsisches Immobilien- und Baumanagement SIB Freistaat Sachsen
Ingenieurbauwerke
Technische Ausrüstung
Sonstige Leistung
örtl. BauüberwachungLP 2 - 8
LP 2 - 8
Jan Pfefferkorn
Technische Ausrüstung
Jan Pfefferkorn
Kostenplanung/Ausschreibung
Stephan Mickan
Dörte Putzky
Bauüberwachung
Guido Jänsch
seit 08.2020
1,4 Mio. EUR



