
Die IPROconsult ist von der BEW Berliner Energie und Wärme AG mit der Planung eines umfassenden Neu-bauprojekts beauftragt, das im Zeit-raum von Februar 2024 bis Oktober 2024 geplant wurde (Baugenehmi-gung). Ziel ist es, eine leistungsstarke und zukunftssichere Infrastruktur zu schaffen, die durch moderne Techno-logien die Energieeffizienz und Nach-haltigkeit optimiert. Das Projekt um-fasst architektonische, tragwerkspla-nerische und technische Disziplinen und setzt auf eine durchgehende digitale Planung mit BIM.
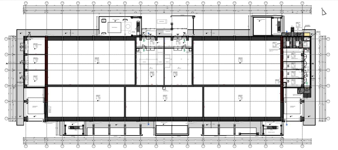
Das Bauvorhaben beinhaltet das Kes-selhaus, das Maschinenhaus sowie verschiedene Anlagen zur Brennstoff-anlieferung und -lagerung. Besondere Herausforderungen ergeben sich durch die Integration hochmoderner
Anlagentechnik, die Berücksichtigung strenger Umweltauflagen und die Sicherstellung effizienter Betriebs-prozesse. Die komplexe Infrastruktur erfordert zudem eine enge interdiszi-plinäre Abstimmung zwischen Hoch-bau, Tragwerksplanung und techni-scher Gebäudeausrüstung.
Die Planung erfolgt konsequent mit Building Information Modeling (BIM). Durch den Einsatz der Autodesk Con-struction Cloud sowie Software wie Revit, Navisworks und Solibri Office wird eine modellgestützte und koor-dinierte Arbeitsweise sichergestellt. Wichtige BIM-Anwendungsfälle um-fassen die Fachkoordination, Kolli-sionsprüfung, Modellbasierte Quali-tätssicherung sowie die Ableitung von Entwurfsplänen.

BEW Berliner Energie und Wärme AG
Architektur LP 2 - 4 Tragwerksplanung LP 2 - 4
Technische Ausrüstung LP 2 - 4
BIM LP 2 - 4
Robert Niewiadomsky
02.2024 - 10.2024
KG 300
KG 400
KG 50082,9 Mio. EUR
11,6 Mio. EUR
7,6 Mio. EUR








